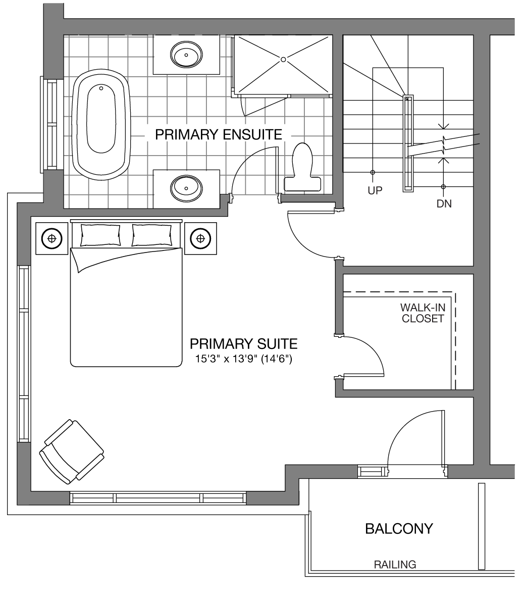
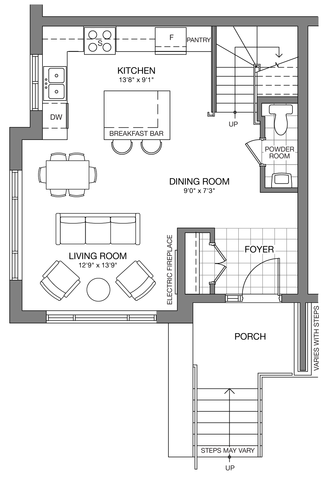
The Soho

2,084 sq. ft. (includes 321 sq. ft. rooftop terrace)

Private Terrace

321 sq. ft.

Actual usable space may vary from stated area. Dimensions, specifications and architectural detailing are subject to changes without notice  E. & O.E. All renderings and landscape features are artist’s concept.